19, Via Filippino Lippi, Buenos Aires - Venezia, Municipio 3, Milano, Lombardia, 20131, Italia









































19, Via Filippino Lippi, Buenos Aires - Venezia, Municipio 3, Milano, Lombardia, 20131, Italia
– VENDITA NUDA PROPRIETÀ –
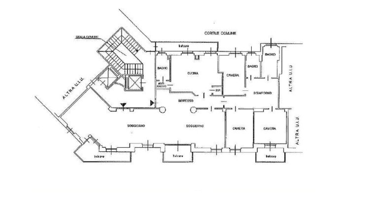
In Via Filippino Lippi Gaiezza Real Estate propone appartamento di cinque locali di c.a. 265 mq commerciali, ubicato al settimo piano di uno stabile signorile con ascensore e portineria intera giornata.
L’appartamento è caratterizzato da: doppio ingresso, un soggiorno triplo di notevoli dimensioni, una cucina abitabile con annesso servizio/lavanderia, tre camere da letto e tre bagni, oltre ripostiglio.
Gode di doppia esposizione, orientamento Sud-Est e affaccio panoramico da quattro balconi.
L’immobile offre un grande potenziale di personalizzazione e ridistribuzione interna.
Completano la soluzione la cantina di pertinenza e un box auto inclusi nel prezzo.
L’edificio vanta di un ampio parco condominiale.
Per maggiori informazioni o per fissare un appuntamento chiama in Agenzia allo 02.49460659 oppure scrivici su Whatsapp al numero 351.8179669
Acquistare e vendere casa con Gaiezza Real Estate è ancora più semplice grazie alla possibilità di poter permutare il proprio immobile.
Offriamo anche servizi di mutuo e consulenza personalizzata.
Vuoi vendere la tua casa al miglior prezzo e nel minor tempo possibile? Chiamaci per una valutazione gratuita del tuo immobile e per una consulenza seria e professionale.
La presente scheda non costituisce forma di contratto, le informazioni ivi contenute sono da considerarsi del tutto indicative e non possono essere utilizzate come parte integrante di alcun contratto di vendita o locazione dell’immobile. Questo documento non vincola in alcun modo la società.
Gaiezza Real Estate declina ogni responsabilità connessa alle informazioni fornite, in quanto tutto il materiale e la documentazione in possesso dell’Agenzia si basano su dati forniti da terzi. Tali informazioni sono ritenute veritiere e pertanto si declina ogni responsabilità per: omissioni, inesattezze ed attualità delle stesse. Su alcune proprietà, le foto potrebbero non corrispondere all’originale a causa della privacy richiesta dalla proprietà. Alcune proprietà possono avere immagini di rendering (simulazioni grafiche di visualizzazione e ipotesi rappresentative).
Via Vanvitelli 49, Milano
Owning a home is a keystone of wealth… both financial affluence and emotional security.
Suze Orman
Questo sito utilizza cookie tecnici e, previo consenso, anche analitici di terze parti (es. Google Analytics) per migliorare la tua esperienza di navigazione.
Puoi accettare tutti i cookie, rifiutarli o gestire le preferenze.