Via Plinio, Buenos Aires - Venezia, Municipio 3, Milano, Lombardia, 20129, Italia









































Via Plinio, Buenos Aires - Venezia, Municipio 3, Milano, Lombardia, 20129, Italia
Ad.ze Bronzino – Via Plinio: Gaiezza Real Estate propone un appartamento in tripla esposizione a un piano alto con doppio ascensore.
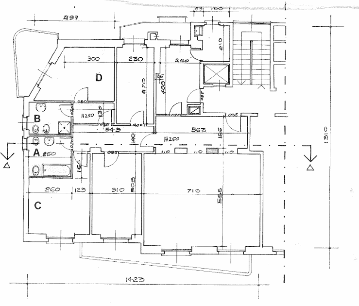
Nell’appartamento troviamo un ampio ingresso che ci introduce in un grande e luminoso salone doppio con accesso alla balconata, disimpegno, cucina abitabile con balcone, tre camere da letto singole, una camera da letto matrimoniale, due bagni padronali e un bagno di servizio/lavanderia e terrazzino.
La proprietà è completata da cantina, solaio e possibilità acquisto box.
L’appartamento è situato in una via caratterizzata da stabili signorili, zone verdi, molto residenziali e tranquilla. Ricca di negozi e servizi, scuole, palestre e supermercati.
Ottima ubicazione strategica con i mezzi di trasporto grazie alla vicine MM1/2/4, autobus che collegano direttamente alla stazione centrale, e tram.
Per maggiori informazioni o per fissare un sopralluogo chiama in Agenzia al n. 02.49460659 o scrivici su Whastapp al n. 351.8179669
La presente scheda non costituisce forma di contratto, le informazioni ivi contenute sono da considerarsi del tutto indicative e non possono essere utilizzate come parte integrante di alcun contratto di vendita o locazione dell’immobile.
Questo documento non vincola in alcun modo la società.
Per maggiori informazioni o per fissare un sopralluogo chiama in Agenzia allo 0249460659 oppure clicca sul seguente link per chattare con noi > > https://wa.me/message/6CEBDYBNA67LM1
Acquistare e vendere casa con Gaiezza Real Estate è ancora più semplice grazie alla possibilità di poter permutare il proprio immobile. Offriamo anche servizi di mutuo e consulenza personalizzata. Vuoi vendere la tua casa al miglior prezzo e nel minor tempo possibile? Chiamaci per una valutazione gratuita del tuo immobile e per una consulenza seria e professionale.
Gaiezza Real Estate declina ogni responsabilità connessa alle informazioni fornite, in quanto tutto il materiale e la documentazione in possesso dell’Agenzia si basano su dati forniti da terzi. Tali informazioni sono ritenute veritiere e pertanto si declina ogni responsabilità per: omissioni, inesattezze ed attualità delle stesse. Su alcune proprietà, le foto potrebbero non corrispondere all’originale a causa della privacy richiesta dalla proprietà. Alcune proprietà possono avere immagini di rendering (simulazioni grafiche di visualizzazione e ipotesi rappresentative).
Piazza Giolitti 1, Milano
Owning a home is a keystone of wealth… both financial affluence and emotional security.
Suze Orman
Questo sito utilizza cookie tecnici e, previo consenso, anche analitici di terze parti (es. Google Analytics) per migliorare la tua esperienza di navigazione.
Puoi accettare tutti i cookie, rifiutarli o gestire le preferenze.